Comfort-driven ventilation system

DESCRIPTION:

One of the main challenges when it comes to designing energy efficient buildings is how to guarantee air renewal without heat losses. A possible solution is to use a variable flow ventilation method. Fresh air is preheated in an intermeadiate capturing space before introducing it into the dwellings. Through automatically regulated bioclimatic elements, it is possible to ventilate in summer or capture and conserve heat in winter.

VALUE

This automated ventilation system can be a solution to reduce energy losses using passive systems. Although the management of these intermediate spaces is key to allow the system to be optimised, the prototype tries to minimise the user effort by automating the opening of the windows.
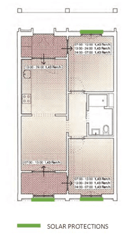
Placement of window motors, sensors and solar protections in an apartment.
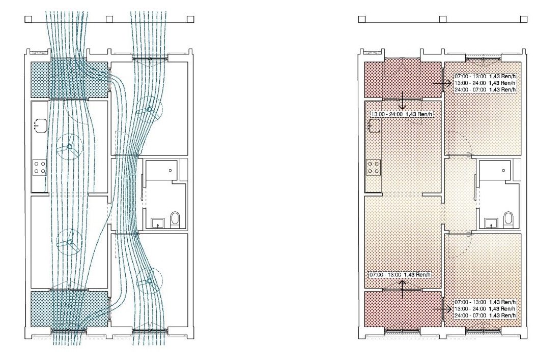
Ventilation strategy for summer (left) and winter (right).

APPLICATION

CO², temperature, and humidity sensors will be installed in each room of the 35 dwellings in the IBAVI public housing building, including the galleries. Those sensors will be connected to motorised windows that will open and close depending on the data collected to keep maximum comfort levels. The system is based on comparing three temperatures: outdoor, insidoor and in the intermediate gallery, which acts as a thermal buffer. When the sensors detect that the temperature outside, or in the intermediate gallery, is closer to the preset comfort level, the windows are opened to benefit from this temperature. In all other cases, apart from when CO2 levels reach high levels, the windows remain closed to be protected from the outside temperature.

POTENTIAL IMPACT

Thanks to:

FUNDING:

Subscribe to our Newsletter

Want to know more about the new generation of climate positive circular communities (CPCC)? Sign up to our bi-annual newsletter (no spam guaranteed)!